D1060SQ/1300 m²/1500 m²/Machine de coupe automatique de 1650 pieds carrés
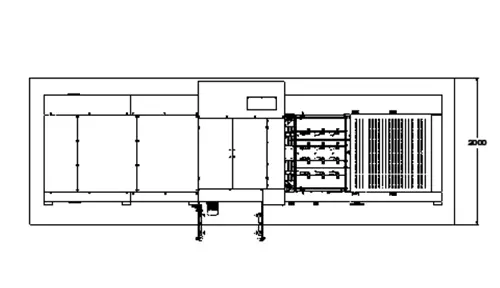
Dessin d'installation D1060SQ
Feida, par pièce de livraison
* Carte de tête Feida de fabrication de technologies européennes, cartons de carton en ondulé et gris multiples-but.
* FNotre aspiration quatre envoies, (plus de 1300 quatre sucès cinq envoient) peut être ajusté en fonction de l'angle et de la hauteur d'aspiration de déformation du papier
* UMécanisme de réception du papiernique, adapté à une déformation du papier différente.
* Henjolit-Speed Feida Head est en alliage d'aluminium spécial, toutes les pièces sont importées.
* PL'interrupteur d'alimentation aper empêche le faux suivi du papier
* Dohin volant-Appareil de détection de collision de tête
* Mpapier d'alimentation et secondairenon-arrêter de changer
* UN ensemble de pré-Le mécanisme de papier de codage est facultatif
* Fish-alimentation en papier à l'échelle, lisse et précise
* PTable d'aper-mécanisme de réglage,non-ajustement d'arrêt.
Détails de la machine ---- Principe du mode de travail de la pièce d'alimentation en papier

Stand d'alimentation en papier
* Le système de contrôle avancé est utilisé pour contrôler le dispositif de vitesse de l'alimentation en papier pour rendre la livraison de papier périmée et réduire la collision.
* Double détecteur photoélectrique.
* Convoyeur en papier d'importation.
* Ultra-Porter la roue de transport en papier polyuréthane résistant.
* Les roues en caoutchouc réglables et les roues de pinceau assurent un positionnement précis du retour avant et latérale d'arrivée.

Devant /jauge latérale
* Pré-Le test assure le taux d'arrivée du papier.
* En utilisant la double poussée gauche et droite-Tirez les jauges pour répondre à différentes exigences d'enregistrement d'impression.
* Papier de presse en tôle en acier, force uniforme et fiable.
Détails de la machine ---- Principe du mode de travail de la partie de coupe de la matrice


Partie de coupe
* Nickel-chrome-molybdène-Chantingle en acier doré avec procédé spécial pour l'acier importé d'Allemagne.
* Taiwan a importé Ultra-porter-Équipement de ver et ver résistant.
* Template d'outil pratique et rapide.
* Système de lubrification de l'alimentation en huile solide.
* Mécanisme intermittent de haute précision à 240 degrés.
* Le dispositif de verrouillage pneumatique est sûr et rapide.
* Joint rotatif à grande vitesse.
* La pression maximale est de 300 tonnes (La pression maximale du type de presse est de 600 tonnes).
* Utilisation du moteur principal de Honeywell avancé (Configuration facultative), la vitesse de coupe de la matrice peut atteindre 7500 feuilles par heure.
* Mourir-Le cadre de la plaque de découpe adopte le système de positionnement intermédiaire avec une fin-dispositif de réglage.
* Double-L'écran couleur affiche l'état de travail de la machine à tout moment.
Conception pour l'élimination des déchets
La compensation moyenne est principalement des trous et des fenêtres, le support peut être retiré du mécanisme, l'installation de la plaque de compensation est rapide et pratique, la structure de compensation adopte la conception des trois images supérieures, moyennes et inférieures, selon les besoins de la dé-Couper Products, vous pouvez choisir la compensation de punch ou la compensation du modèle, le modèle de compensation adopte le centre de la méthode de positionnement, facile à modifier la plaque, positionnement précis, fonctionnement lisse, les cadres de compensation supérieure et inférieure d'un ensemble chacun; Le fonctionnement global de l'équipement est simple, élevé d'automatisation, augmenter la capacité de production pour réduire le coût et l'intensité de la main-d'œuvre. Il est facile à utiliser et à être très automatisé, ce qui améliore la capacité de production et réduit l'intensité du coût et de la main-d'œuvre.
Détails de la machine ---- Principe de mode de travail de la pièce électrique

* Toute la machine adopte American Meiji et French Schneider Electric. Composants pour assurer un fonctionnement stable de la machine.
Détails de la machine ---- Principe du mode de travail de la pièce de réception papier
Département de réception
Dépouillement

Il peut être utilisé par l'interrupteur correspondant sur le clavier, équipé du remplacement des pièces finies et des pièces d'ouverture, et peut basculer entre complet et semi-suppression.